首页
新闻资讯
中心概况
平台建设
五大平台
N个基地
一站式综合服务平台
高性能智算平台
电磁环境模拟平台
光电融合集成中试平台
芯片设计测试加工平台
通信概念验证平台
高校成果
转化案例
创新成果
技术需求
综合配套
商业配套
人才配套
共建高校
联系我们
首页
新闻资讯
中心概况
平台建设
高校成果
综合配套
共建高校
联系我们
返回
返回
返回
五大平台
N个基地
一站式综合服务平台
返回
转化案例
创新成果
技术需求
返回
商业配套
人才配套
返回
返回
一站式综合服务平台
首页 - 平台建设 - 一站式综合服务平台
架构设计
平台空间布局
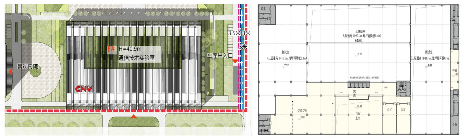
信息通信分中心一站式综合服务平台设置于无线谷三期F#楼三层层部分空间
建筑面积约1200平方米,目前规划1个总控制室,1个综合调度室,5个平台控制室及其设备配套。采用分层架构,前台提供各类展示和操作界面;中台提供大数据汇聚、存储、共享、分析等功能;后台提供采集功能,以及和其他系统、平台的对接。投资估算约5000万元(不含各专业管理系统)。
功能定位及运营目标
一站式服务
搭建全国高校开放共享的"一站式"公共转化平台,提供从项目入库、概念验证、中小试基地、拨投结合、基金投资、场景建设等全方位服务。通过"5+N+1"平台建设体系(5个公共技术服务平台、N个产业化中小试基地和1个一站式综合服务平台),实现成果转化全流程"一窗受理、一网通办"。
全链条
构建覆盖"信息通信研发、概念验证、中试检测、工程熟化、商业验证、市场验证"的全链条、全流程转化服务体系。通过提供技术验证、工程熟化、商业验证、市场验证等转化服务,着力打通高校技术供给端到产业需求端的全链条。在平台建设方面,已建成6G综合试验室、6G概念验证中心等20余个公共技术服务平台,设备总投资超6亿元,有效支撑了49项平台建设需求,需求响应率达90%以上。
开放共享
打造国际领先的公共技术服务平台,积极与分中心内龙头企业探索建立企业平台共建共享机制。目前已整合中软国际大模型赋能中心平台、赛宁网安网络安全攻防靶场、东大-联通工业互联网实训平台、中电国基南方光电探测器件中试平台、天元实验室光电融合平台等10余个企事业单位现有平台,面向共建高校提供开放共享服务。通过"5+N+1"平台建设体系,实现资源开放共享、平台互联互通,形成"共建、共治、共享"的开放创新生态。
产研融合
分致力于打造高校科技成果转化和创新创业人才培养"双中心",通过"20个典型应用场景"(如通感融合通信、低空智联等)促进高校成果在真实场景下得到验证。目前已开展拨投结合转化项目3个,总投超6000万元;新建毫米波测试车载雷达中试线,投资超5000万元;打造6G无人机巡检、5G高精度定位等20个场景,总投资超5000万元。同时,通过组建不少于200人的技术经理人团队,在每所高校安排不少于2名技术经理人驻点办公,常态化收集成果转化需求,实现高校科研与产业需求的精准对接,推动产学研深度融合,加速高校科技成果转化为新质生产力。
定位目标
我有需求
*
联系人:
*
联系方式:
*
需求单位:
需求:
提交
我有成果
*
联系人:
*
联系方式:
*
成果单位:
成果概述:
提交